Asnières-sur-Seine (92600) 2 pièces à vos goûts

Réf : MAVAP10007508 340 616 €

Gabriel Péri - 2 pièces - 4ème étage.

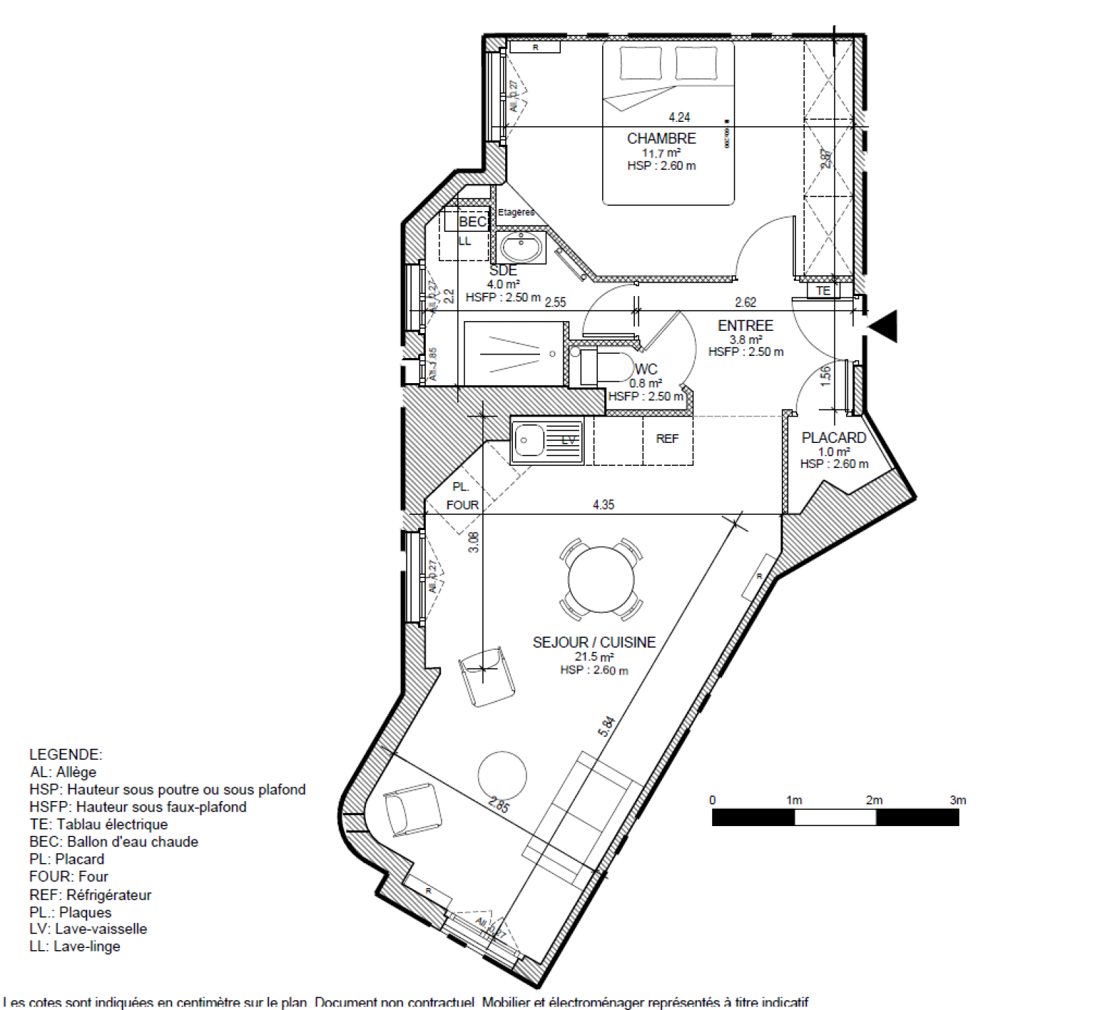
Au 4ème étage d’un immeuble bien tenu, appartement 2 pièces de 42,8 m² offrant un fort potentiel d’aménagement et de personnalisation.

Dès l’entrée, un espace fonctionnel avec placard dessert un séjour avec cuisine ouverte d’environ 21,5 m², permettant d’imaginer un espace de vie convivial et optimisé. La configuration actuelle propose une belle pièce de vie aux volumes atypiques, facilement aménageable en coin salon et espace repas.

L’espace nuit se compose d’une chambre d’environ 11,7 m² avec rangements intégrés. Une salle d’eau et des WC séparés complètent l’ensemble, apportant un confort de vie au quotidien.

Le prix inclut un accompagnement par un architecte ainsi que la réalisation des travaux, permettant à l’acquéreur de concevoir un intérieur à son image, selon ses goûts et ses besoins. Une opportunité rare de créer un bien personnalisé sans les contraintes d’un projet classique.

À proximité immédiate des commerces.
Les transports sont accessibles rapidement, facilitant les déplacements au quotidien.

Un bien idéal pour un premier achat ou un projet sur mesure, dans un secteur recherché.

TRAD_SIROCCO_Caracteristique Valeurs
Code postal 92600
Surface habitable (m²) 42,60 m²
Surface loi Carrez (m²) 42,60 m²
Nombre de chambre(s) 1
Nombre de pièces 2
Etage 4
TRAD_SIROCCO_Caracteristique Valeurs
Nb de salle de bains 1
Cuisine Américaine
Type de cuisine Equipée
TRAD_SIROCCO_Caracteristique Valeurs
Copropriété OUI
nombre de lots 87
TRAD_SIROCCO_Caracteristique Valeurs
Prix de vente honoraires TTC inclus 340 616 €
DPE GES
DPE en cours
  • Commerces et santé
  • Loisirs
  • Ecoles
  • Transports
  • Pratique

Nos outils

Imprimer
Intéressé(e) par Ce bien ?

* Champ obligatoire

contacter l'agence

Les informations recueillies sur ce formulaire sont enregistrées dans un fichier informatisé par La Boite Immo agissant comme Sous-traitant du traitement pour la gestion de la clientèle/prospects de l'Agence / du Réseau qui reste Responsable du Traitement de vos Données personnelles. La base légale du traitement repose sur l'intérêt légitime de l'Agence / du Réseau. Elles sont conservées jusqu'à demande de suppression et sont destinées à l'Agence / au Réseau. Conformément à la loi « informatique et libertés », vous disposez des droits d’accès, de rectification, d’effacement, d’opposition, de limitation et de portabilité de vos données. Vous pouvez retirer votre consentement à tout moment en contactant directement l’Agence / Le Réseau. Consultez le site https://cnil.fr/fr pour plus d’informations sur vos droits. Si vous estimez, après avoir contacté l'Agence / le Réseau, que vos droits « Informatique et Libertés » ne sont pas respectés, vous pouvez adresser une réclamation à la CNIL. Nous vous informons de l’existence de la liste d'opposition au démarchage téléphonique « Bloctel », sur laquelle vous pouvez vous inscrire ici : https://www.bloctel.gouv.fr Dans le cadre de la protection des Données personnelles, nous vous invitons à ne pas inscrire de Données sensibles dans le champ de saisie libre.
Ce site est protégé par reCAPTCHA, les Politiques de Confidentialité et les Conditions d'Utilisation de Google s'appliquent.

Ces biens peuvent aussi vous intéresser
Levallois-Perret (92300)

Louise Michel - 2/3 pièces - 38m²

Nouveauté
Boulogne-Billancourt (92100)

Duplex dans le centre de Boulogne-Billancourt

Nous suivre sur